
Wir machen vieles anders als andere.
Meistens besser, auf jeden Fall jedoch hell, freundlich und liebenswert im Detail.
Und natürlichauch hier: Wahnsinnig preiswert !
Mit einer Aura zum Liebhaben:
Aus den Top-5 unserer preiswertesten Kuschel-Domizile:

Bungalow "MyFamily"
Derzeit existieren nur Fotos vom Frontbereich des Hauses, welcher dem Min-Haus "Sunny Home" entspricht.

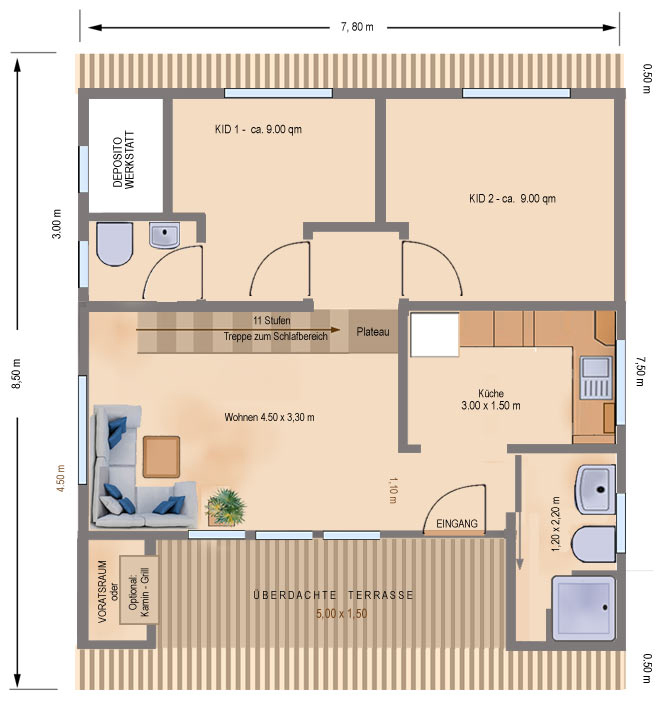
Ein Blick auf den Grundriss zeigt:
Die Basis des Hauses bildet im vorderen Bereich quasi der 53 qm große Bungalow "Sunny-Home" incl. des oberen Schlafbereiches.
Hier jedoch (im neuen hinteren Teil) wartet der Bungalow "My Family" mit zwei weiteren ebenerdigen Schlafzimmern auf, einem zweiten Bad sowie mit einem von außen zugänglichen Deposito (Vorratsraum) für Gartengeräte, Rasenmäher usw.

Grundgriss in groß ansehen oder downloaden

Siehe den Grundriss
vom oberen Bereich...
Ebenfalls bereits im Baupreis enthalten:
Eine moderne weiße Einbauküche mit dunkler Granit-Arbeitsplatte
sowie europäische Sanitärobjekte und Armaturen, Eingangstüren
aus Massivholz und das bekannte Schukostecker-System (für innen und
außen). Im Hauswirtschaftsraum wurden drei Wasserleitungen (1 Zugang,
2 Abflüsse) sowie eine Steckdose für eine Waschmaschine installiert.
Der kleine Abstellraum (links am Ende der Terrasse) wird durch eine Außentür
zugänglich, bzw. optionell gegen Aufpreis durch einen Kamingrill
mit Schornstein über dem Dach ersetzt.
Ihr Bungalow "MyFamily" bietet im oberen Frontbereich des Hauses
mit mehr als 10 qm auf einer Fläche von 3,50 m x 3.00 m einen geräumigen
Ruhebereich oberhalb von Küche und Bad mit viel Platz
für Ihre Ausstattungsideen.
Hier einige Fotos vom Schlafbereich. Ganz rechts: Blick vom Schlafraum
ins Wohnzimmer.
Dieses Haus ist ganz neu in unserem Angebot.
Daher zeigen die Fotos nur die Räumlichkeiten (vorderer Bereich)
von Mini-Haus "Sunny Home"
![]()
Das sollten Sie sich
unbedingt ansehen:
Gratis-pdf-Download:
Baubeschreibungen
und Details zum Bungalow "My Family"
Angucken oder Ausprobieren:
Probewohnen
im Tinydorf "La Vida Verde", Patino, Bungalow "Sunny Home"?
Wilkommen im neuen Daheim!




