
Modernes Wohnen mit exotischem Flair...
Die
Zeiten ändern
sich. Auch in Paraguay.
Noch bis in die 80er Jahre hinein, gab es fast nur in den Städten Strom
und die damit verbundenen Annehmlichkeiten (Ventilatoren, Klimaanlagen, Kühlschränke
usw). Damit die Sommerhitze halbwegs zu ertragen war, baute man im tropisch-warmen
Paraguay die Häuser so, dass möglichst wenig Sonne nach innen gelangte:
Tief gezogene Dächer, überdachte Außengänge und schattige
Verandas schluckten Licht und Sonne. Das schuf dustere Innenräume, in denen
nur Gaslampen, Kamine, Kerzen und später auch Glühbirnen und eigene
Dieselgeneratoren die Räume etwas erhellten. Ferner standen die Fenster
immer weit offen, um mit etwas Durchzug die Temperaturen im Haus zu mildern.
Damals...
Heute ist modernes Wohnen in hellen, freundlichen Räumen angesagt. Im zeitgemäßen
Design gibt es nun viel Licht für Räume und für die Seele.
MiCasa "Diseño Perfecto ", 63 qm 25.700 Euro
Mit

hellen, freundlichen
Räumen, die viel Licht durch die großen Fenster einfliessen lassen,
besticht dieses moderne Designer-Haus. Neben einem Wohn/Esszimmer und Küche
verfügt das Haus über drei Schlafzimmer (eines en suite) und einem
zweiten Badezimmer (siehe
Grundriss).
Die Küche hat einen eigenen Zugang. Dort befindet sich auch (außen)
ein zusätzlicher kleiner Waschplatz zum Reinigen von Gemüse, Stiefeln
usw. Statt dessen kann hier auch eine Waschmaschine ihren Platz finden.
Die kleine und preiswerte Variante ein ideales schickes Konzept für
Singles oder zwei bis drei Personen...
Die im Plan aufgezeigten 2-Bett-Zimmer können z.B. als Gästezimmer,
Büro oder Hauswirtschaftsraum genutzt werden. Eine schicke Pergola oder
Terrasse kann gegen Aufpreis links neben dem Eingang gebaut werden.
Grundriss
ansehen
Casa "Florentine", 56 qm 28.800 Euro
Gerade Linien, einfache Strukturen und große Fenster
Casa Florentine
bietet Ihnen ein komfortables Zuhause zum günstigen Preis.
Das Haus verfügt über einen großzügig konzipierten offenen
Wohn-Esszimmer-Küchen-Bereich sowie über zwei Schlafzimmer und ein
Bad. Auf Wunsch bauen wir für Sie Careport, Quincho, Terrasse oder
Swimming Pool dazu (aktuellen Preis bitte per eMail erfragen).
Grundriss (mobil) ansehen Grundriss
groß (PC) ansehen
Casa "Lucía", 155 qm, 66.500 Euro
Modern

und in
Top-Qualität entspricht dieses Designer-Haus höchsten Ansprüchen.
Neben einem großzügig konzipierten Wohn/Essbereich verfügt das
Haus über eine Küche, drei Schlafzimmer und drei Bäder sowie
einen überdachten Waschplatz (Rückseite des Hauses). Die beiden Seiten
des Hauses sind fensterlos, so dass bei Bedarf auch auf der Grundstücksgrenze
gebaut werden kann.
Steht mehr eigener Garten zur Verfügung, bieten sich die Seitenwände
an, um dort optional eine Garage, Terrasse, Quincho oder Poolanlage zu integrieren.
(Pool und Quincho-Anlagen ansehen).
Foto seitlich
Foto, Haus hinten
Grundriss unten (mobil) ansehen
Grundriss
oben (mobil) ansehen Grundriss
unten (PC) ansehen Grundriss
oben (PC) ansehen
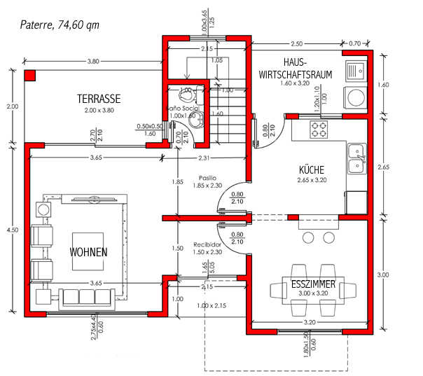
Casa "Margerita", 194 qm 85.000 Euro
Schick

und elegant im modernen
Stil der neuen Prachtvillen in Paraguay, so stellt sich
La Casa Blanca
im Land der Sonne dar. Neben einer großen Garage (2 KFZ) gehört auch
eine etwa 35 qm große Swimmingpool-Anlage mit Filterraum und Gästebad/Dusche
zu diesem tollen Preisangebot. Das Haus geht über zwei Ebenen. Im Paterre
besticht ein großzügiges Raumkonzept aus Wohnzimmer, Esszimmer und
Küche plus Terrassen, Bad und einem Hauswirtschaftsbereich (für Waschmaschine,
Vorrat u.a.).
Oben gibt es zwei Schlafzimmer en-suite, davon eines mit Ankleideraum. Zu beiden
Zimmern gehört je ein Balkon.
Mehr Bilder ansehen Grundrisspläne
1
und
2
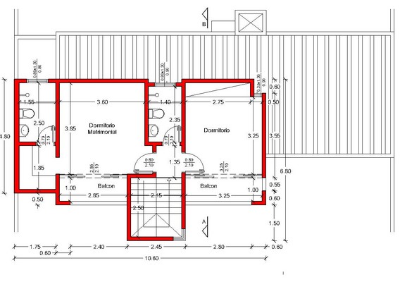
Casa "Leopold II", 215 qm, 92.000 Euro
Mit

215 qm bietet die noble
Villa
'Casa Leopold II' helle, freundliche Räume, schöne Terrassen
und Balkone sowie eine beeindruckende Einfahrt mit Carport. Poolbereich (
siehe
unsere Pool- und Quinchos) oder Grillhaus bauen wir gerne in Ihrem Auftrag
dazu.
Das Haus ist in je einen Wohnbereich (paterre) und Schlafbereich (obere Etage)
unterteilt. Unten befinden sich Wohnzimmer, Esszimmer, Küche, ein Hauswirtschafts-Raum,
Gäste-WC und (beim hinteren Garten) eine große überdachte Terrasse
zum Relaxen.
In der ersten Etage befinden sich das Eltern-Schlafzimmer (en-suite) plus Ankleidezimmer
sowie zwei weitere Gästezimmer, die sich das zweite Bad in der oberen Etage
teilen. Zu einem der Zimmer gehört ein Balkon auf der Frontseite, 1. Etage,
rechts (siehe Foto).
Grundriss unten (mobil)
ansehen Grundriss
oben (mobil) ansehen Grundriss
unten (PC) ansehen Grundriss
oben (PC) ansehen
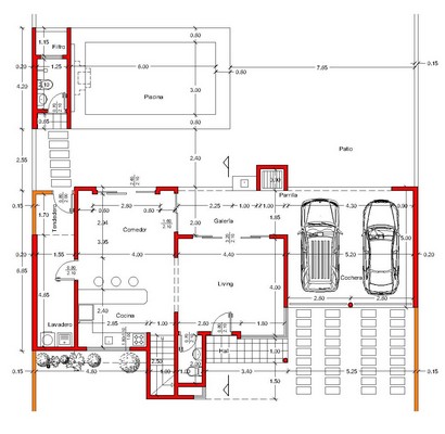
La "Casa Blanca", 322 qm, 178.000 Euro
Viel

Raum, viel Licht
– viel Liebe zum Detail Dieses Traumhaus verfügt über einen unteren Wohn-,
Ess- und Schlafbereich, sowie über eine erste Etage mit offener Sonnen-Terrasse
und Aussichtspunkt.
Das Erdgeschoss wurde sinnvoll mit einem großzügig angelegten Hauptteil konzipiert,
sowie mit einem schönen Apartment mit eigenem Eingang plus zwei weiteren Gästezimmern,
die ebenfalls über einen eigenen Zugang verfügen.