
Hier finden Sie: I Häuser
bis 100.000 Euro I Häuser ab 100.000
Euro I
Mal traditionell, mal ein Hauch von Eleganz
Kolonialstil
oder Zeitgeist Qualität überzeugt in jedem Stil
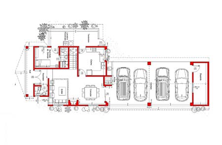
The "Big King House", 234 qm 115.000 Euro
Im

derzeit 'angesagten'
Stil der paraguayischen Natur-Sichtziegel-Bauweise (im hellen Beige) präsentiert
sich
The Big King House als ein echtes Qualitäts-Highlight. 5 Bäder,
4 Schlafzimmer, ein großer Wohn-/Essbereich, Küche, Terrassen, Carport
für 4 KFZ (oder teilweise als Terrasse) sowie ein Lagerraum/Werkstatt,
bieten Ihnen ein angenehmes, freundliches Zuhause.
Wie die meisten großen paraguayischen Villen wird über zwei Ebenen
gebaut, was sich beim Grundstückskauf (weniger groß) in erfreulichen
Zahlen wieder spiegelt. Wer große Grundstücke bevorzugt, der schafft
sich mit dieser Bauweise mehr Platz für atemberaubende Gartenstrukturen,
Poolanlagen, Grillbereich usw.
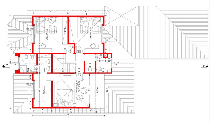
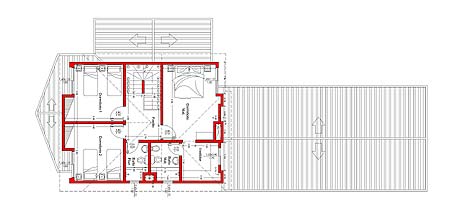
Mehr Bilder ansehen Grundriss
(Mobil)
1 und
2 Grunriss (PC)
1 und
2
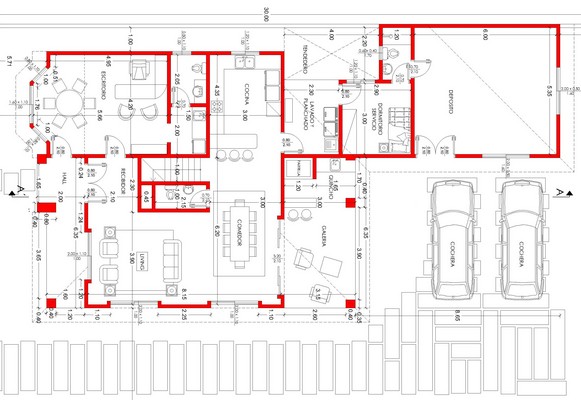
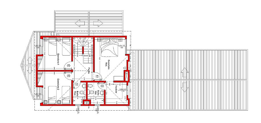
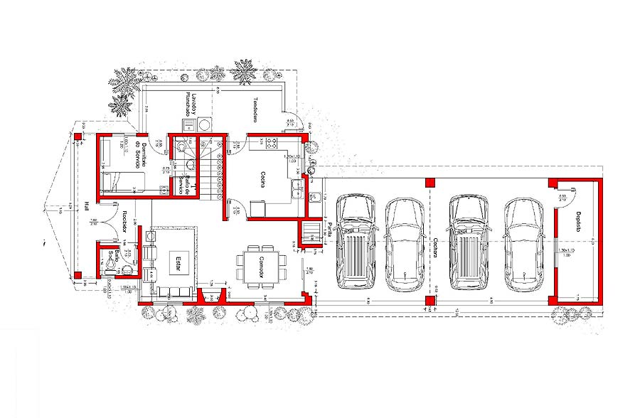
Casa "Don Alberto", 320 qm 137.000 Euro
Schlichte

Paraguay-Eleganz
ohne Kompromisse. In Naturziegeln und in glamuröser Ausstattung präsentiert
sich unser Haustyp "Don Alberto". 4 Schlafzimmer, 6 Bäder, ein
großer weiter Wohn-Essbereich, der zum Garten hin in eine überdachte
Terrasse mit Bar bzw. Quincho übergeht. Es gibt ferner einen Personalbereich
(für Hauspersonal das im Haus lebt), plus eine große Garage oder
Werkstatt / Lagerraum usw. Drei der Schlafzimmer findet man in der oberen Etage
und eines Paterre im Personalbereich.
Ein weiterer großer Raum (paterre links) von 4,30 x 5.00 m plus Bad kann
als Büro, Gästezimmer, Bibliothek, Wintergarten und... oder ... genutzt
werden. Der Eingangsbereich ist überdacht und Teil der vorderen Terrasse.
Mehr Bilder ansehen Grundrisspläne
1
und
2
The "Ravenclaw House", 320 qm, 148.000 Euro
Ihr

eigenes Knusperhäuschen
mit viel Charme á la Harry Potter. Rundbogenfenster, Naturstein-Fassaden
und zahlreiche andere Extras verweisen auf edle Materialien und ein anspruchsvolles
Design. Das im toskanischen Stil konzipierte Haus verfügt über einen großen
Wohn- / Essbereich mit Küche, Foyer und Speisekammer. Esszimmer und Wohnzimmer
teilen sich einen 2-seitigen Kamin.
Darüber hinaus bietet das attraktive Haus drei Schlafzimmer (eines davon
en-suite), 1 weiteres Bad, eine Garage mit viel Raum für Utensilien und
zwei überdachte Terrassen.
Mehr Bilder ansehen Grundriss
La "Casa Blanca", 322 qm, 178.000 Euro
Viel

Raum, viel Licht
– viel Liebe zum Detail Dieses Traumhaus verfügt über einen unteren Wohn-,
Ess- und Schlafbereich, sowie über eine erste Etage mit offener Sonnen-Terrasse
und Aussichtspunkt.
Das Erdgeschoss wurde sinnvoll mit einem großzügig angelegten Hauptteil konzipiert,
sowie mit einem schönen Apartment mit eigenem Eingang plus zwei weiteren Gästezimmern,
die ebenfalls über einen eigenen Zugang verfügen.